The Rules Have Changed

Build up to 70m² with clarity and expert guidance.

New national rules mean you can now build a 70m² minor dwelling ‘Granny Flat’ without a building consent.

The process is simpler, but still requires careful planning.

We help you understand your site, your options, and the best design for your land.


Important Update on Building Rules

The rules around building a granny flat in New Zealand have changed and while the process is now easier, understanding what’s possible on your property still takes expert guidance. At Unit2Go, we’ve spent more than 16 years designing and building high‑quality transportable homes, and we’re here to help you navigate the new 70m² exemption with clarity and confidence.

Whether you’re creating space for whānau, adding a rental, or planning a future‑proof minor dwelling, our team can help you understand your options and design a solution that fits your land, lifestyle, and long‑term goals.

Ready to find out what's possible? Book a no-obligation, free Site Assessment.

BOOK YOUR FREE SITE ASSESSMENT

What the New Rules Allow:

From 15 January 2026, homeowners can build a stand‑alone, single‑storey dwelling up to 70m² without needing a building consent. These dwellings, often called granny flats or minor units, must still meet the New Zealand Building Code, but the path to building is now faster and more accessible.

Key requirements include:

  • Maximum internal floor area of 70m²
  • Single‑storey, stand‑alone structure
  • Simple, code‑compliant construction
  • Work completed or supervised by licensed professionals
  • Council notified before and after the build (via a PIM and final documentation)

The exemption removes the consent paperwork, not the need for quality, compliance, or expert oversight.

Download Our Granny Flat Guide

Our Range and Custom Options

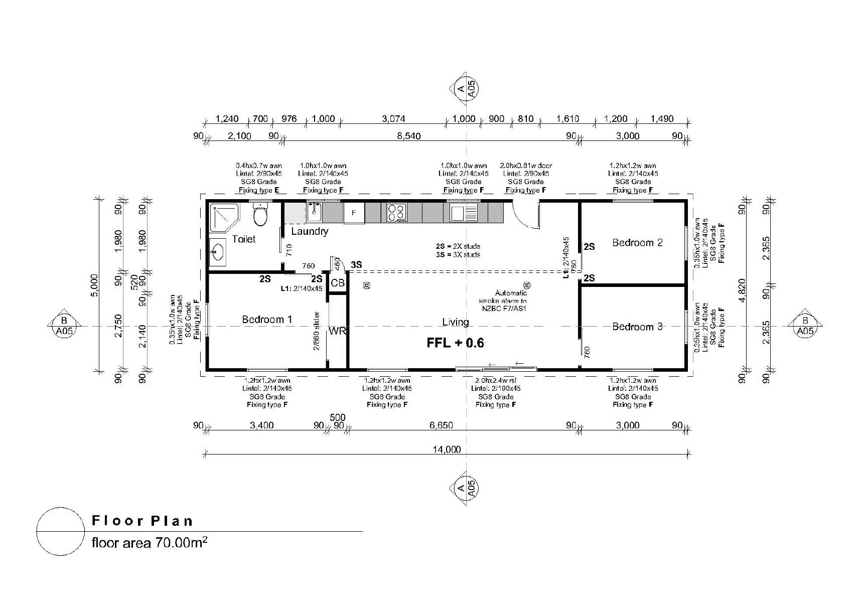
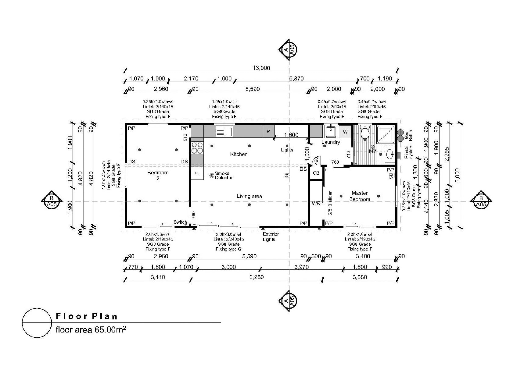
We offer a curated range of architecturally considered cabins and minor dwellings, including studios, one‑bedroom, two‑bedroom, and three‑bedroom layouts, all designed to meet the new 70m² exemption.

If your site or lifestyle needs something unique, our in‑house architectural team can work with you to design a custom layout that maximises your space and meets all compliance requirements.

Premium materials, thoughtful proportions, and long‑lasting construction come standard across every build.

Explore Our Range

Why a Site Assessment Matters

Every property is different. Zoning, setbacks, hazards, and service connections all influence what you can build — and where.

That’s why the first step is a site assessment.

Our team reviews:

  • Zoning and planning requirements
  • Setbacks, site coverage, and height limits
  • Flood, wind, seismic, and coastal hazards
  • Access to power, water, wastewater, and stormwater
  • Whether your land can support one of our proven designs or a custom layout

This gives you a clear, confident understanding of what’s possible before you begin.

How the Process Works

Building under the new exemption is simpler — but still structured.

Here’s how we guide you through it:

  1. Site Assessment - We review zoning, hazards, setbacks, and services to confirm what’s possible.
  2. Design & Layout - Choose from our proven range or collaborate with our architectural team on a custom design.
  3. Council Notification (PIM) - We help you prepare the information required before building begins.
  4. Build Phase - Your cabin is constructed by our licensed professionals to meet the NZ Building Code.
  5. Delivery & Installation - We transport and position your new dwelling on site.
  6. Final Documentation - We help you submit Records of Work and compliance documents to council.

A streamlined process, backed by a team who has navigated rule changes for more than a decade.

Why Choose Unit2Go

  • 16+ years of experience building premium transportable homes
  • In‑house architectural expertise
  • Proven, code‑compliant construction
  • Custom design options available
  • Transparent process from start to finish
  • A team that understands the new rules and how to apply them to your site

We’ve seen regulations evolve many times. What hasn’t changed is our commitment to building high‑quality, long‑lasting homes that stand the test of time.

Start With a Site Assessment

The new rules open the door, but your land determines what’s possible.

Begin with a complimentary site assessment and get clear, expert guidance tailored to your property.

BOOK YOUR FREE SITE ASSESSMENT

Explore our flexible financing options.

OUR FINANCE OPTIONS

Discover our quality Kiwi construction methods.

BUILT TO LAST